Закрытый коттеджный поселок бизнес-класса на берегу реки Волга 🌳
Закрытый коттеджный поселок бизнес-класса
на берегу реки Волга 🌳

Готовый дом 6

Готовый дом 6

Площадь дома
250,9 м2
Площадь участка
10,98 сот.
Кадастровый № дома
44:07:110101:842
Кадастровый № участка
44:07:110101:794
Стоимость дома с участком
18 000 000 ₽

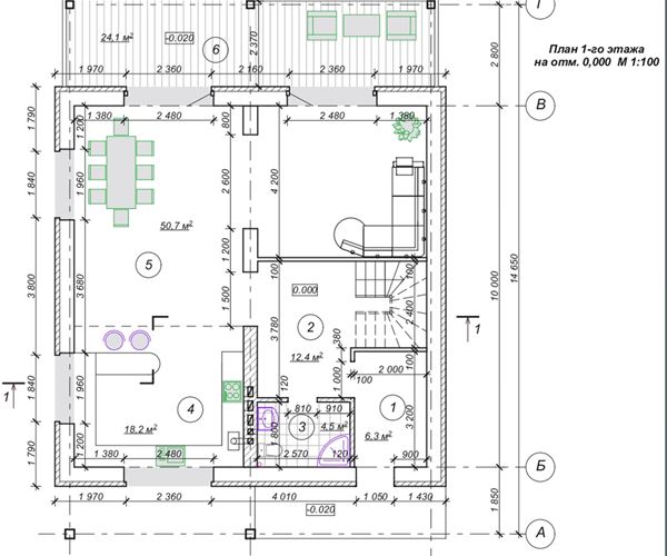
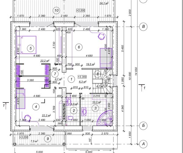
Готовый 2-х этажный дом «под ключ» от застройщика.

Площади:
Отапливаемая площадь дома: 140 м2
1 этаж: кухня-гостиная 39,5 м2, комната 12 м2
2 этаж комнаты: 12 м2, 19,5 м2, 19,5 м2
с/у: 1 этаж - 7,5 м2, 2 этаж - 7,5 м2

Застройщик: ООО “Ресурс”
ИНН 4401170504
КПП 440101001
ОГРН 1164401053079

Материалы дома:

Фундамент:
свайно-ростверковый
Несущие стены:
керамические блоки 380 мм
Перегородки:
керамический кирпич и газобетон
Облицовка:
керамический кирпич
Перекрытия:
ж\б плиты
Кровля:
мягкая черепица
Окна:
2-х камерный стеклопакет
Отделка:
штукатурка стен, стяжка пола

Комплектация:

Смонтирована система уличного и внутреннего газопровода
Установлен газовой котел АОГВ
Ввод электричества в дом до щитка
Смонтированы вентиляционные каналы
1 этаж - теплые полы и радиаторы,
2 этаж - радиаторы
Монтаж системы центральной канализации
Установлена металлическая лестница со ступенями
Установлена металлическая входная дверь